Головна » Прес-Центр » Статті та публікації » Застосування системи штекерного електромонтажу Wieland gesis для систем освітлення
01.08.2012
Метою цієї статті є огляд застосування окремих сімейств роз'ємів "gesis" у системах внутрішнього освітлення будівель та споруд.
Стаття адресована насамперед проектувальникам систем освітлення, дизайнерам-світлотехнікам, монтажникам, інсталяторам систем автоматизації, а також спеціалістам служб експлуатації будівель.
Наведено приклади застосування штекерного електромонтажу для систем освітлення. Застосування системи штекерного електромонтажу Wieland gesis дозволяє отримати, в результаті, дуже гнучкі та високоефективні рішення, унікальні за співвідношенням ціна/якість/функціональність. Їх використання дає конкурентні переваги під час продажу чи оренди приміщень, а також сприяє іміджу об'єкта.
Виготовлені у виробничих умовах компоненти змінюють процес будівництва сучасних будівель
При будівництві адміністративно-офісних будівель питання витрат – як прийнято вважати — є основним питанням. На сьогоднішній день, поряд з ціною зведення, все більша увага приділяється витратам на експлуатацію та техобслуговування, які виробляються протягом усього терміну служби будівлі. Враховуються також комфортність будівлі та можливість її гнучкого використання під час перепланування. Гнучкість використання означає, що інфраструктура будівлі в потрібний момент може бути пристосована до потреб орендаря або власника, що змінилися, причому по можливості без істотних витрат.
Електромонтаж все ще часто залишається традиційним
Застосування традиційного електромонтажу пов'язане із значними витратами часу та коштів. Крім того, такий монтаж ніяк не назвеш гнучким, якщо в будівлі виробляються перепланування, пов'язані зі зміною розташування міжкімнатних перегородок, всі електричні кабелі зазвичай прокладаються заново.
Але можливий інший варіант. Завдяки використанню штекерного електромонтажу структуроване прокладання силових та керуючих кабелів здійснюється принципово іншим шляхом: На будівельний майданчик поставляються виготовлені у виробничих умовах кабелі заданої довжини, з уже встановленими на них роз'ємами. Вони прокладаються над підвісною стелею, у настінних кабель-каналах, під фальш-підлогою. До них підключаються спеціальні розподільні коробки, які обладнані штекерними роз'ємами для різних застосувань.
  
Конструктив компонентів виключає можливість помилок при монтажі.
Механічне кодування всіх з'єднань забезпечує з'єднання лише відповідних один одному роз'ємів з відповідною полярністю. Так, наприклад, неможливо вставити 2-х полюсну вилку в 3-х полюсну розетку.
Колірне кодування дозволяє оптично відрізняти роз'єми для різних застосувань, наприклад, чорний колір роз'єму відповідає "силової лінії із заземлюючим проводом", а коричневий "комутованої лінії без заземлення".
На сьогоднішній день система штекерного електромонтажу "gesis" включає асортимент з 5000 найменувань, для різних застосувань і умов навколишнього середовища, до неї входять:
Переваги штекерної електроінсталяції:
Система постійно розвивається та оновлюється, з урахуванням тенденцій розвитку будівельної галузі. Багато виробників обладнання: світильників, розеток та лючків у підлогу, пристроїв автоматики та інших пристроїв оснащують свої пристрої роз'ємами Plug&play.
  
gesis CON GST 18i
роз’єми зі стандартними розмірами: для підключення світильників, розеток, лючків у підлозі… від 3 до 6 полюсів, напруга: 250 V, 250/400 V, струми: до 20 A
  gesis MINI GST 15i
gesis MINI GST 15i
версія з оптимізованим розміром, для монтажу в обмеженому просторі від 2 до 5 полюсів, напруга: 250 V, 250/400 V, струми: до 16 A
  gesis MICRO GST 08i
gesis MICRO GST 08i
роз’єми для мініатюрних LED світильників 2 і 3 полюси, напруга: ~250 V, 12 V, 24 V, струми: до 6 A
  gesis ST 16
gesis ST 16
роз’єми для підключення галогенних світильників (в одному роз'ємі поєднані розетка та вилка), 2 полюси, напруга: 48V, струм: до 25А.
  gesis ST 17
 gesis ST 17
роз’єми для підключення галогенних світильників напруга (з розвантаженням від натягу) 2 полюси, напруга: 50V, струм: до 16А
  gesis IP+
gesis IP+
роз’єми для підвищених вимог, класи захисту: від IP 65 до IP 68, 2-, 3-, 4-, 5- полюсна система, напруга: 250/400 V, струм: 20 A, 25A, 50A, температурний діапазон: -40° до +100°C.
  gesis CON — роз'єми GST 18i зі стандартними розмірами.
gesis CON — роз'єми GST 18i зі стандартними розмірами. 
Виконання роз'ємів 2-, 3-, 4-, 5,- 6-полюсів, випускаються з гвинтовою та з пружинною фіксацією провідника, роз'єми розраховані на роботу під напругою 250 V, 250/400 V, при струмі до 20 A.
Родина gesis CON ділиться на кілька груп:
  Роз'єми GST 18i від 3 до 6 полюсів.
 Роз'єми GST 18i від 3 до 6 полюсів. 
Основна серія зі стандартними розмірами, до 20 A, стандарт IEC 61535: 2010
  
 
Розподільні блоки GST 18i від 3 до 5 полюсів, 
1 вх./2 вих. (T-розподільник), 1 вх./3 вих., 1 вх./5 вих. і т.д., розетки SCHUKO з роз'ємами
  
 
Роз'єм ST18/3 UNI та GST 18i3 код 3 
- спеціальне кодування для напруги до 5 кВ 
для підключення світильників із газорозрядними лампами
  
 
 BST 14i2/BST 14i3 2 и 3 полюса 
низьковольтні роз'єми для керування освітленням (димування DALI, 1-10 V) та автоматизації будівель KNX та LON
Переваги конструкції роз'ємів gesis CON
  
Розглянемо різні застосування кодувань роз'ємів gesis CON для систем внутрішнього електроосвітлення
  Кодування серії GST 18i3 
У роз'ємах GST 18ix; остання цифра означає число полюсів, GST 18ix3 –трьох полюсний роз'єм
Розглянемо 4 типи механічного кодування:
Приклад 1. Поділ ліній робочого та аварійного освітлення
Під час монтажу системи робочого освітлення можна застосувати компоненти з роз'ємами GST 18i3 чорного та білого кольорів, вони мають однаковий механічний код (Код 1) і допускають з'єднання один з одним. Це м.б. корисно для візуального поділу груп робочого освітлення, що підключаються до різних фаз.
  
На малюнку
  1. Група робочого освітлення Код 1 (білий колір), фаза L1 
2. Група робочого висвітлення Код 1 (чорний колір), фаза L2
При зміні груп, наприклад при переплануванні, Plug&play компоненти чорного та білого кольорів можна використовувати спільно.
Штекерні з'єднувачі інших кольорів стикуються виключно з компонентами gesis того ж кольору. Наприклад, для аварійного освітлення, з метою надійного поділу ланцюгів, можна використовувати несумісний з Кодом 1, Код 2 (галечно-сірий колір),
3. Лінія аварійного освітлення Код 2 (галечно-сірий колір), гарантоване харчування
У цьому та інших прикладах розподіл трифазного живлення здійснюється за допомогою плоского кабелю Wieland 5 x 2,5 мм (250/400 V, 24 A, IP 20) (бірюзового кольору).
У разі використання комбінованого кабелю (бузкового кольору), крім подачі живлення, на групи світильників подаються також сигнали автоматичного керування (наприклад, з шини KNX/EIB).
Варіант із застосуванням розподільних коробок для світильників з Е/м ПРА та ЕПРА
У корпус світильника встановлюється роз'єм, GST 18i3 Код 1 чорного або білого кольору, для підключення використовуються Т-конектори та кабельні з'єднувачі, які обладнані роз'ємами з аналогічним кодуванням.
  
  
Для розподілу на групи та підключення вимикачів можна використовувати розподільні коробки BlackBox. Для підключення вимикачів призначений роз'єм GST 18i3 Код 4 коричневого кольору. Групи світильників підключаються за допомогою роз'ємів чорного або білого кольору GST 18i3 Код 1.
  
Як спуски до вимикачів використовуються готові кабелі «вилочний роз'єм – вільний кінець» (роз'єм GST 18i3 Код 4 коричневого кольору), спеціально призначені для ланцюгів комутації. Зачищені вільні кінці оброблені ультразвуком, стандартні довжини від 1 до 10 м,
Приклад 2. Керування двома групами освітлення
  
  
На малюнку:
1. Світильники з встановленими роз'ємами 
2. Розподільна коробка для керування двома групами освітлення. 
3. Двоклавішний вимикач
Приклад 3. Керування однією групою освітлення автоматично (за датчиком) та вручну за допомогою вимикача
  
  
  
На малюнку:
1. Розподільна коробка для керування з двох місць. 
2. Датчик присутності ESYLUX PD-CE360i/8 GST оснащений вихідним кабелем 1 метр із роз'ємом GST18i3 
3. Вимикач
  
У роз'ємах GST 18i5; цифра 5 означає п'яти полюсний роз'єм.
Окрім стандартного кодування:
Код 1 (кольори чорний та білий) – три фази із заземленням (L1, L2, L3, N, PE) у серії GST 18i5 є додатковим варіантом кодування:
Код 2 (колір блакитний) — Мережа із заземленням (L,N,PE) та двопровідне світлорегулювання (+,-), спеціально призначений для систем керування освітленням (1 – 10 В, DALI).
Роз'єми для світильників з регульованими ЕПРА (1 – 10 В, DALI).
Для плавного регулювання освітлення, люмінесцентні світильники оснащуються регульованими ЕПРА. Керування може здійснюватися за протоколом DALI (Digital Addressable Lighting Interface) – стандартною технологією для цифрового керування та моніторингу світлових приладів або за аналоговою системою керування 1-10V.
Як шина керування може бути використана шина KNX/EIB — відкрита, універсальна технологія, яка є стандартом в галузі автоматизації будівель.
  Світильники включаються датчиками, при виявленні присутності і якщо освітленість у місці встановлення датчика менша за порогове значення. Освітлення може вмикатися і вимикатися як за командами з датчика руху присутності, і у ручному режимі, при натисканні клавішу звичайних кнопкових вимикачів. Під час роботи у режимі "Постійна освітленість" сумарна освітленість природним та штучним світлом підтримується на постійному заданому рівні.
Світильники включаються датчиками, при виявленні присутності і якщо освітленість у місці встановлення датчика менша за порогове значення. Освітлення може вмикатися і вимикатися як за командами з датчика руху присутності, і у ручному режимі, при натисканні клавішу звичайних кнопкових вимикачів. Під час роботи у режимі "Постійна освітленість" сумарна освітленість природним та штучним світлом підтримується на постійному заданому рівні.
Приклад 4. Керування двома групами освітлення по шині KNX, димування з можливістю роботи в режимі "Постійне освітлення"
  
  
Світлорегулювання із застосуванням п'ятиполюсних роз'ємів серії GST 18i5 Код 2 блакитного кольору
  
1. Світильники з регульованими ЕПРА та 5 полюсними роз'ємами GST 18i5 Код 2 блакитного кольору — мережа із заземленням (L,N,PE) та двопровідним світлорегулюванням (+, -), призначені для систем димування (1 – 10 В, DALI) .
2. Двоканальний виконавчий KNX пристрій для димування (1 – 10 В,). Виходи оснащені роз'ємами серії GST 18i5 Код 2 блакитного кольору
3. Датчик присутності PD-C 360i/8 mini KNX, оснащений вихідним кабелем з роз'ємом BST 14i2 Код 1 зеленого кольору для підключення до шини KNX
У цьому випадку підключення триполюсного живлення та двополюсного керування здійснюється окремо.
Варіант 1. Корпус світильника обладнаний двома триполюсним та двополюсним TT-розгалужувачами з фіксацією з'єднання 1 вхід / 1 вихід / вбудована пружинна клема з фіксацією у вирізі корпусу
  
Варіант 2. Корпус світильника обладнаний роз'ємом у панель BST 14i2 Код 2 блакитного кольору, підключення здійснюється за допомогою TT-розгалужувача 1 вхід/2 виходу
  
Приклад 5. Використання технології Linect,
  
  
  
1. Світильники з інтерфейсом Linect
На малюнку показаний варіант застосування п'ятиполюсних Linect конекторів Wieland серії GST 18i5 Код 2 блакитного кольору, для керування двома групами освітлення по шині KNX, димування з можливістю роботи в режимі "Постійна освітленість"
  Роз'єми ST18/3 UNI та GST 18i3 Код 3 для підключення світильників із газорозрядними лампами
 Роз'єми ST18/3 UNI та GST 18i3 Код 3 для підключення світильників із газорозрядними лампами 
Газорозрядні лампи High Ignition Discharge Lamp (HID) є гарним рішенням для освітлення вітрин магазинів, торгових залів, галерей, музеїв, стадіонів, вуличного освітлення та підсвічування об'єктів. Крім хорошої передачі кольору, перевагами газорозрядних ламп є енергоефективність, тривалий термін служби і висока експлуатаційна надійність.
Приклад 6. Для запалювання (запуску) газорозрядних ламп високого тиску на них короткочасно подається високочастотна напруга 2—5 кВ. Цю напругу формують спеціальні імпульсні запалювальні пристрої (електронні баласти), які конструктивно відокремлені від корпусу світильника.
Для з'єднання електронного баласту та світильника призначені роз'єми ST18/3 UNI та GST 18i3 Код 3 світло-червоного кольору, відрізняються нанесеним маркуванням "5 kV" Роз'єми встановлюються на спеціальні кабелі з силіконовмісною подвійною ізоляцією, розрахованою на напругу імпульсу запалювання до 5 кВ і на температуру до 180 °C.
Усі компоненти задовольняють вимогам стійкості до виникнення електричної дуги згідно з DIN EN 60598
Роз'єми ST18/3 UNI затверджені як стандартний інтерфейс між електронними баластами та світильниками з газорозрядними лампами (HID) різних виробників.
  
"Універсальний" роз'єм ST18/3 UNI повністю сумісний з роз'ємами ST18/3 у чорному, білому, червоному та зеленому кодуваннях
  
Сімейство gesis MINI призначене для монтажу в обмеженому просторі. 
Виконання роз'ємів 2-, 3-, 4-, 5-полюсів, за мінімальних розмірів, роз'єми розраховані на роботу під напругою 250 V, при струмі до 16 A, 
Області застосування: освітлення торгових вітрин, компоненти для електромонтажу в офісних меблях, у кабельних каналах та плінтусах, у металевих профілях, у стінах збірних мобільних будинків
Приклад 7. Розглянемо варіанти монтажу модульних систем освітлення типу «Світлова лінія» Застосування: для освітлення торгових залів, коридорів, навчальних аудиторій тощо.
   
Варіант 1. Модульна система з використанням світильників з регульованими ЕПРА (1 – 10 В, DALI) з'єднання типу "Світильник-світильник"
1. Світильники з двома встановленими п'ятиполюсними роз'ємами GST 15i5 Код 2 блакитного кольору, вилка та розетка при механічному з'єднанні роз'ємів відбувається наскрізне з'єднання по 5-провідній лінії: мережа із заземленням (L,N,PE) та двопровідне світлорегулювання (+, -).
2. Пристрій вводу/виводу з двома виходами димування (1- 10В або DALI ), оснащений роз'ємами GST 15i5 Код 2 блакитного кольору, Підключення ліній світильників до виходів димування за допомогою подовжувачів з роз'ємами gesis MINI
   
Варіант 2 Для з'єднання світильників з встановленими роз'ємами GST15i3 використовуються U-подібні перемички. Перевага: при виведенні дефектного світильника в ремонт достатньо зняти перемичку, замінити світильник і повернути перемичку назад на місце.
  
Варіант 3 Підключення світлодіодних світильників з встановленими роз'ємами GST15i2
  
  Нове сімейство роз'ємів gesis MICRO — наступний крок у напрямку мініатюризації системи "gesis".
Нове сімейство роз'ємів gesis MICRO — наступний крок у напрямку мініатюризації системи "gesis". 
Основне застосування для прокладання "останнього метра" в обмеженому просторі, де електроустановка має бути непомітною ззовні. 
Сфера застосування: Світлодіодне освітлення, низьковольтні освітлювальні прилади, блоки живлення для обмеженого простору
Круглі 2-/3-полюсні штекерні роз'єми типів GST08i2/GST08i3 GST08I2: діаметром всього 8 мм, можуть без спеціального інструменту, пропущені через восьмиміліметровий отвір.
Система складається з роз'ємів на друковану плату, роз'ємів та аксесуарів для встановлення в панель, віконних з обох кінців подовжувачів, з'єднувальних кабелів вилка/розетка – вільний кінець, розподільників на 2 входи/6 виходів, а також адаптерів для систем штекерного електромонтажу gesis CON та gesis MINI.
2-полюсний варіант GST08i2 передбачає:
А також кодування червоного кольору для підключення пристроїв комутації ~230, 2,5 А; (див. нижче)
  
3-полюсний варіант GST08i3 білого кольору, призначений для живлення 250 В, 6А
Приклад 8. Підключення світильників за допомогою подовжувачів та розподільників з роз'ємами GST08i2, комутація (кодування червоного кольору) здійснюється за допомогою датчика присутності
  
 
 
  1. Розподільник 2 входу / 6 виходів, з відключенням входу живлення Вхід 1 живлення ~220В (білий колір), Вхід 2 для підключення пристроїв комутації (червоний колір), Виходи з 1 по 6 для підключення світильників (білий колір), 
 >
  2. Розподільник 1 входу / 2 виходи,  
  3. Подача живлення на вхід ~ 220В, 
  4. Датчик присутності PD-C360i/6 mini підключається до комутованого входу за допомогою з'єднувача вилка вільний кінець
Системи низьковольтних роз'ємів ST 16 /ST 17 для організації вітринного, торгового освітлення, компактні мініатюрні штекерні з'єднувачі для підключення галогенних ламп
  ST 16 – серія компонентів двопровідного виконання з фіксацією з'єднання, 48V, 25А (без розвантаження від натягу). Цікавою особливістю даної серії є те, що кожен окремий штекерний елемент поєднує в собі розетку та вилку, завдяки чому система складається з небагатьох базових складових частин.
 ST 16 – серія компонентів двопровідного виконання з фіксацією з'єднання, 48V, 25А (без розвантаження від натягу). Цікавою особливістю даної серії є те, що кожен окремий штекерний елемент поєднує в собі розетку та вилку, завдяки чому система складається з небагатьох базових складових частин.
Компоненти та приклади застосування роз'ємів ST16
  
  ST 17 – серія c великою кількістю різних компонентів для вирішення широкого кола завдань, з механічним кодуванням, фіксаторами та розвантаженням від натягу 50V, 16А
 ST 17 – серія c великою кількістю різних компонентів для вирішення широкого кола завдань, з механічним кодуванням, фіксаторами та розвантаженням від натягу 50V, 16А
Компоненти та приклади застосування роз'ємів ST17
  
  
Застосування таких систем не лише знижує початкові витрати. Структурований та чітко документований електромонтаж спрощує експлуатацію та обслуговування надалі протягом усього терміну служби будівлі.
Штекерна електроінсталяція дотримується сучасних методів проектування електричних мереж. Все більше архітекторів використовують систему Building Information Modeling (моделювання даних по будівлі), щоб отримати надійну та узгоджену інформацію щодо обсягу будівлі, тимчасових рамок та динаміки витрат будівельного проекту.
Ця технологія відрізняється швидкою підготовкою проекту, гарною координацією між його учасниками, незначними витратами на проектування та високою якістю кінцевого продукту.
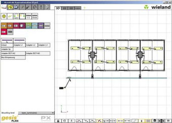
Компанія Wieland Electric розробила для подібного моделювання інструмент для проектувальників – програму gesis Plan, за допомогою якої на підставі даних будівлі в CAD форматі можна генерувати ескізи кабельної розводки та специфікації.
Програма самостійно перевіряє навантаження кабелів струмом і виявляє помилки. Проектувальник, у 3D-виді, в деталях, відразу, бачить на екрані результат проектування.
Програма gesis Plan надається безкоштовно та спрощує проектування штекерної електроінсталяції. Крім того, фахівці компанії Wieland Electric консультують та надають підтримку проектувальникам будівель та електричних мереж при проектуванні та розрахунках. Спеціально навчена команда співробітників з величезним накопиченим досвідом надає допомогу та бере на себе детальне опрацювання планів. Ця послуга для клієнтів є безкоштовною.
  
Перспективне проектування та будівництво визначають перспективу використання будівлі протягом усього терміну її служби.
У той час, як архітектура будівлі, матеріали, будівельно-фізичні параметри визначаються після зведення будівлі і можуть бути змінені лише після капітального ремонту, при високих фінансових і тимчасових витратах, орієнтована на перспективу електроінсталяція є основою економічної та ресурсозберігаючої експлуатації.
Зазвичай вартість електроінсталяції складає близько 5% всіх витрат на будівництво, оскільки за час життя будівлі інженерні системи періодично оновлюються, важливе значення набуває саме можливість швидкого переоснащення з мінімальними витратами. Адже від якості електроінсталяції залежить майбутня безпека та працездатність будівлі.
  
Рішення про те, який монтаж здійснюватиметься у будівлі – традиційний чи штекерний, є важливим. Вже на початкових етапах проектування, наскільки можна ще на стадії проведення тендеру на виконання проектних робіт, це питання має бути вирішене.
У яких випадках доцільне застосування штекерного монтажу?
Вважається, що штекерна електроінсталяція виправдана при запланованому гнучкому використанні площ та загальній площі будівлі, починаючи від 2000 м2
Штекерні компоненти дорожчі, ніж традиційні, але інвестиції не можна оцінювати тільки з точки зору закупівельної ціни, до уваги повинні братися також робочий час і вартість робіт, а також подальші витрати на техобслуговування та ремонт.
Потрібно враховувати також такі аспекти як комфортність будівлі та гнучкість при перепрофілюванні, хоча ці параметри досить важко оцінити в грошах, саме вони часто виявляються вирішальними.